Taloesittely Hirvensalmella: pieni omakotitalo

Pieni omakotitalo, joka on toteutettu Sievitalon Lämpöhirsi-talopakettina

Tämä pieni omakotitalo on toteutettu maisemaan sulautuvaksi vapaa-ajanasunnoksi.

  • Lämpöhirsi-talopaketti
  • Huoneistoala 60 m2, kerrosala 71 m2
  • 2 mh
  • Valoisa tupakeittiö korotetulla sisäkatolla
  • Päätyterassi
  • Keittiössä niemekeratkaisu liesitasolla

 

Pieni Sievitalo taipuu myös mökiksi

Tämä pieni omakotitalo on toteutettu Sievitalon Lämpöhirsi-talopakettina. Kauniisti maisemaan istuva Lämpöhirsi materiaalina tuo taloon hirsirakentamisen hyötyjä ja ehkäpä hitusen mökkitunnelmaakin.

Talo koostuu kahdesta makuuhuoneesta, valoisasta tupakeittiöstä kulmatulisijalla, kylpyhuoneesta ja tilavasta päätyterassista, jonne olohuone laajentuu lämpiminä kesäpäivinä.

Pohjaratkaisuun on sisällytetty kaikki tarpeellinen: on tilaa nukkumiselle, ruuanlaitolle ja olemiselle. Keittiön liedellä varustettu niemekeratkaisu tarjoaa tilaa kokkailulle ja yhteisille hetkille ruuan ääressä, oleskelutilan isot ikkunat aukeavat ympäröivään luontoon ja kulmaan sijoitettu tulisija tuo lämpöä ja tunnelmaa viileämpiin iltoihin.

Parkkipaikkojen vähyyden vuoksi näyttelyyn vain ennakkoilmoittautumisen kautta – sovi aika yksityisnäytölle taloedustaja Tarjan kanssa, saat samalla osoitteen kohteeseen.

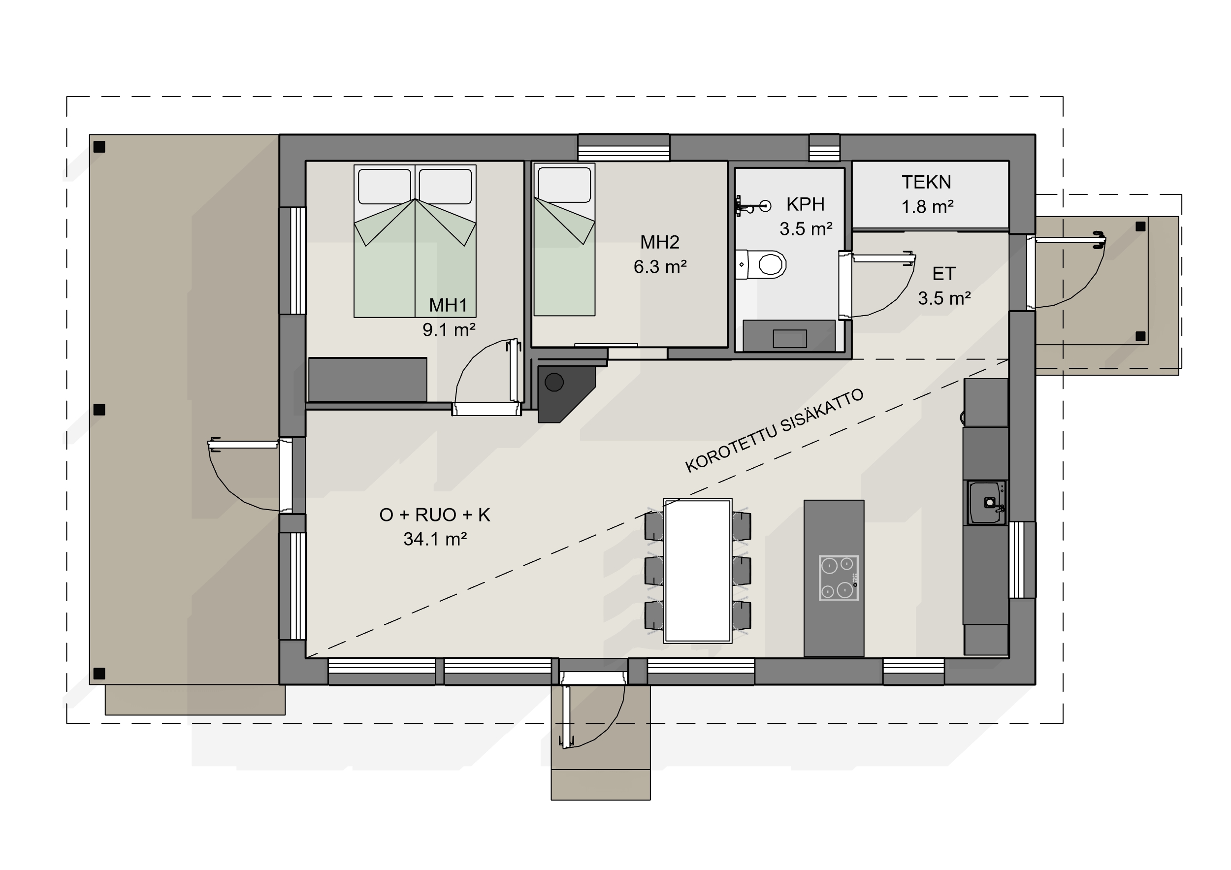
pienen omakotitalon pohjaratkaisu: kodissa on kaksi makuuhuonetta, kylpyhuone, valoisa tupakeittiö niemekeratkaisulla ja korotetulla sisäkatolla.
Pieni omakotitalo soveltuu hyvin myös vapaa-ajan käyttöön. Tässä kodissa on kaksi makuuhuonetta, kylpyhuone-WC ja valoisa, avara tupakeittiö korotetulla sisäkatolla ja niemekeratkaisulla. Ulko-ovia on kolmeen ilmansuuntaan, yksi olohuoneesta sisennetylle terassille.

Paikalla edustamassa Sievitaloa

taloedustaja Tarja Haukka

Tarja Haukka
040 762 2331
tarja.haukka@sievitalo.fi

Tutustu muihin taloedustajiin täällä!