Taloesittely Riihimäellä – KOMIA 127 + autokatos
Sievitalo KOMIA 127 autokatoksella tarjoaa tyylikkäät ja toimivat tilat perheelle
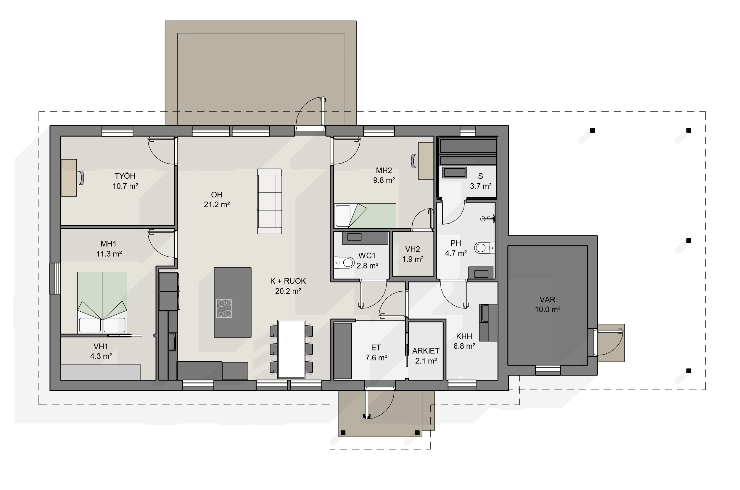
Tämä keltainen omakotitalo autokatoksella on Sievitalo KOMIA 127, johon on tehty pieni muutos huonejärjestykseen.
- Huoneistoala 112 m2, kerrosala 127 m2
- Yksikerroksinen
- Autokatos päädyssä
- Kaksi makuuhuonetta + työhuone
- Kaksi vaatehuonetta
- Erillinen varasto
Sievitalo KOMIA 127 tarjoaa kodikkaat ja toimivat tilat perheelle
Tämä koti on suunniteltu silmällä pitäen arjen toimivuutta. Päätyyn liitetty autokatos ja erillinen varasto lisäävät käytännöllisyyttä ja säilytystilaa.
Kodin yhteiset tilat avautuvat läpi talon ja käsittävät olohuoneen, L-muotoisen saarekekeittiön ja ruokailutilan. Liesitaso on sijoitettu saarekkeeseen. Ruokapöydälle on tilaa keittiön vieressä. Olohuoneesta pääsee kulkemaan takaterassille.
Makuuhuoneita on kaksi, minkä lisäksi kodissa on tilava työhuone. Molempien makuuhuoneiden yhteydessä on vaatehuoneet.
Erillinen WC sijaitsee eteisen välittömässä läheisyydessä ja kodin toinen WC pesuhuoneen yhteydessä. Eteisessä on myös liukuoven taakse kätkeytyvä arkieteinen.
Näin KOMIA 127 -mallin pohjaratkaisua on muokattu
Kuten kaikkia Sievitalon vakiomalleja, myös KOMIA-malliston koteja voi muokata mieleisekseen. Tässä kodissa muutos on pieni, mutta asiakkaan tarpeita vastaava, ja siksi tärkeä.
Muutoksella kotiin on lisätty arkieteinen pääsisäänkäynnin yhteyteen. Arkieteiselle on lohkaistu tila kodinhoitohuoneen puolelta, jolloin vaatesäilytys tehostuu.
Mahdollisista muokkauksista pohjaratkaisuihin kannattaa aina keskustella ammattitaitoisten taloedustajiemme kanssa – heiltä saat toimivia vinkkejä ja rautaista ammattitaitoa pohjaratkaisun muuttamiseen mieleiseksesi.

