Taloesittely Kangasalla: kaksikerroksinen paritalo
Kaksikerroksinen paritalo, jossa kaksi erilaista asuntoa
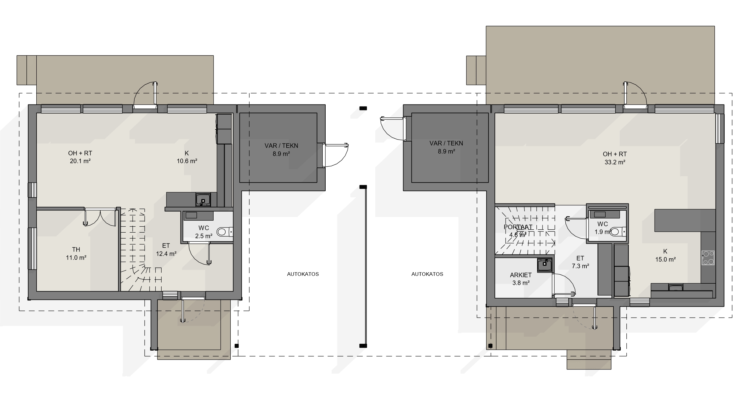
Tässä Sievitalon rakentamassa kaksikerroksisessa paritalossa talot ovat toisistaan erillisiä, mutta yhteydessä toisiinsa autokatoksen välityksellä. Talot eivät jaa yhteistä seinää.
- Kahden asunnon kokonaisuus, kaksikerroksinen paritalo
- Asunto A: huoneistoala 131 m2, kerrosala 166 m2. Kaksi kerrosta, joista alemmassa yhteiset tilat isolla niemekekeittiöllä ja valoisalla olohuoneella, erillinen arkieteinen ja WC. Ylemmässä kerroksessa kolme makuuhuonetta, saunaosasto ja kodinhoitohuone.
- Asunto B: huoneistoala 112 m2, kerrosala 146 m2. Tämän asunnon ensimmäisessä kerroksessa on yhteisten tilojen lisäksi tilava työhuone ja erillinen WC. Yläkerrasta löytyy kaksi makuuhuonetta, vaatehuone ja tilava aulatila.
- Suunniteltu Sievitalo Oma malli -palvelun kautta
Kaksikerroksisen paritalon asunnot yhteydessä autokatoksen kautta
Tässä Sievitalo-kohteessa paritalo on toteutettu parhaalla mahdollisella tavalla: toisistaan erilliset asunnot ovat kuin omia talojaan, mutta ne kytkeytyvät toisiinsa autokatoksen välityksellä. Asunnot eivät siis jaa yhteistä seinää, mikä lisää yksityisyyttä asumiseen.
Asunnoista suurempi, A-asunto, on huoneistoalaltaan 131 m2 ja kerrosalaltaan 166 m2. Tämän kodin ensimmäisessä kerroksessa sijaitsee yhteisten tilojen lisäksi arkieteinen ja erillinen WC. Toinen kerros on pyhitetty muulle asumiselle, ja se käsittää kolme makuuhuonetta, aulatilan sekä kodinhoito- ja pesutilat.
Asunto A:n keittiöön on modernilla niemekeratkaisulla saatu helposti lisää pöytä- ja säilytystilaa. Niemeke myös erottaa keittiön ruokailutilasta ja toimii tarjoilupöytänä. Keittiö myös kätkeytyy näppärästi hieman kulman taakse siten, ettei olohuoneesta ole suoraa näköyhteyttä esimerkiksi tiskipöydälle.
Pienempi B-asunto puolestaan koostuu yläkertaan sijoittuvista kahdesta makuuhuoneesta, tilavasta aulasta, vaatehuoneesta, saunaosastosta ja kodinhoitohuoneesta, sekä alakerran yhteisistä tiloista, erillisestä WC:stä ja työhuoneesta.
B-asunnon keittiö nivoutuu saumattomasti samaan tilaan olohuoneen ja ruokailutilan kanssa. Tila on avara ja valoisa, ja L-muotoon suunnitellut keittiökalusteet tarjoavat myös mukavasti työskentelytilaa.
Molempia koteja yhdistää moderni ulkoasu, suuret lattiatasoon saakka ulottuvat ikkunat ja toimiva pohjaratkaisu.
Tällainen kaksikerroksinen paritaloratkaisu mahtuu tarvittaessa kompaktimmallekin kaupunkitontille.


Paikalla esittelemässä Sievitaloa

Joona Ollila
044 022 2899
joona.ollila@sievitalo.fi

Mikko Perkiö
050 445 5904
mikko.perkio@sievitalo.fi