Esittelyssä Sievitalo Lahdessa
Kaupunki-tyylinen omakotitalo, jossa toimiva ja tilava pohjaratkaisu
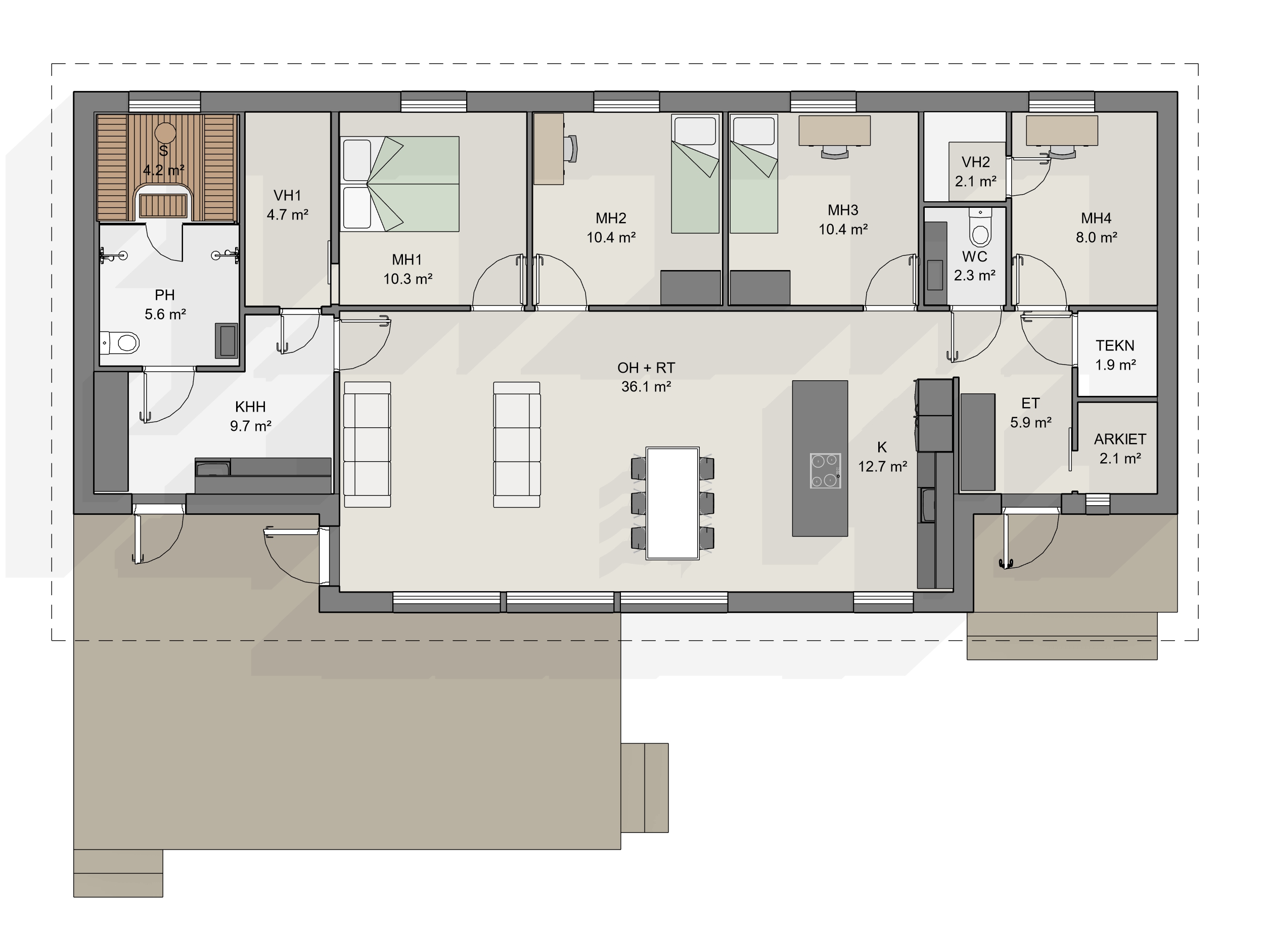
Tässä Kaupunki-tyyliä edustavassa Sievitalossa on mukavasti tilaa: huoneistoalaltaan 132 m2 kodista löytyy neljä makuuhuonetta, kaksi vaatehuonetta, erillinen arkieteinen ja hyvän kokoinen kodinhoitohuone. Kerrosala 150 m2.
Kodin sisäänkäynnit ovat molemmat talon etupuolella. Pääsisäänkäynti sijaitsee toisessa kulmauksessa tyylikkäällä sisennetyllä terassilla. Eteisen yhteydessä on sekä kiintokalustekaapisto että erillinen arkieteinen. Talotekniikalle on varattu oma tila arkieteisen vierestä. Talon päädyssä olevan makuuhuoneen yhteydessä on vaatehuone.
Yhteiset tilat muodostuvat yhdistetystä keittiö-olohuone-ruokailutilasta, josta keittiö on erotettu liedellä varustetulla saarekkeella. Ruokapöydälle on runsaasti tilaa saarekkeen läheisyydessä, ja toinen puoli yhteisistä tiloista on valoisaa olohuonetta.
Kodinhoitohuone ja saunaosasto sijaitsevat talon toisessa päädyssä. Kodinhoitohuoneesta ja olohuoneesta on käynti isolle terassille. Kodinhoitohuoneen yhteydessä on myös reilun kokoinen vaatehuone.
Tervetuloa tutustumaan tähän Sievitaloon!
Tiedot tarkentuvat.

